Proiectant general și de arhitectură: DAN ANDREI TONCA BIROU DE ARHITECTURĂ
Expert Ministerul Culturii: Prof. em. dr. arh. Teodor Octavian GHEORGHIU
Expert tehnic Ministerul Culturii: Prof. dr. ing. Marin MARIN
Expertiza biologică: BIOHARCOM SRL, Biolog dr. Livia BUCȘA, Biolog Luminița PAUL
Structură – consolidări: CREATIVE PIPES & CONCRETE SRL, Ing. Cristian BĂRBULESCU
Specialist Ministerul Culturii: Prof. dr. ing. Marius MOȘOARCĂ
Instalații: Ing. Ioan ROȘIU
Studiu topografic: EXPERT TOPOBOGDAN SRL, Ing. Nicolae BOGDAN
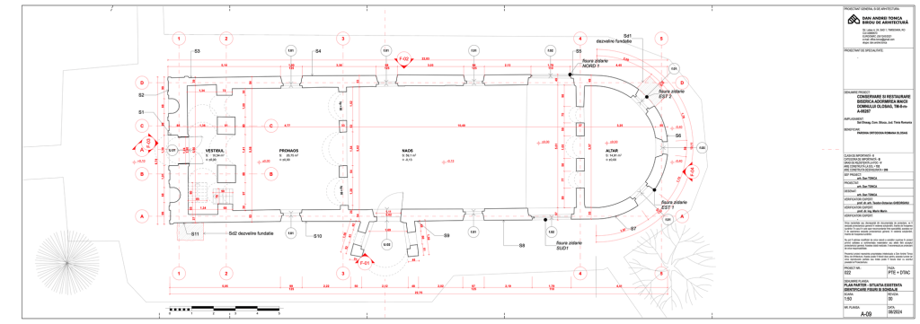
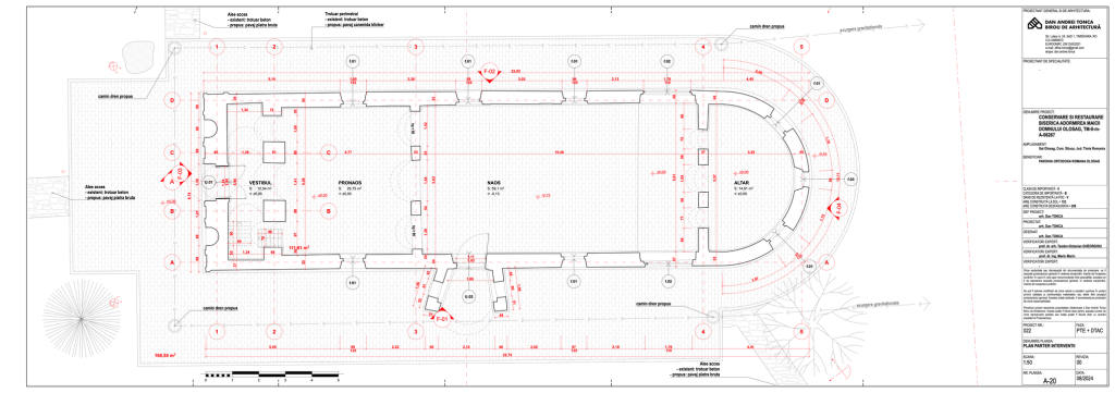
Biserica din Oloșag, ridicată în perioada 1761-1767 are un caracter de unicitate dat de arhitectura sa, fiind construită în etape. Lăcașul de cult a cunoscut o serie de intervenții și etape constructive, în perioade de timp diferite, având ca scop adaptarea la nevoile comunității, dar și trăinicia sa. Ultima intervenție majoră a fost construirea turnului clopotniță în secolul al XIX-lea. Intervențiile mai recente au fost făcute, din păcate, fără specialiști și cu materiale nepotrivite.
Unicitatea monumentului este dată și de simbioza materialelor și tehnicilor constructive – întâlnim aici un edificiu din zidărie, cu 4 tipuri de tavane – 3 realizate integral din lemn – tavan drept, calotă semicirculară și calotă sferică, respectiv o boltă din zidărie cu dublă curbură la baza turnului. De asemenea, trebuie remarcate și 3 stiluri și tehnici de pictură interioară diferite.
Metodele de cercetare utilizate au fost alese atât pe baza unor principii consacrate (vizite la fața locului, studierea documentelor de arhivă și a bibliografiei aferente), dar și pe baza tehnicilor contemporane (scanarea 3D a monumentului cu nori de puncte, care a facilitat realizarea unui releveu detaliat; expertiza biologică, cea care confirmă prezența a 3 esențe de lemn diferite în cadrul șarpantei, corespunzătoare celor 3 etape constructive; studiu de umiditate a zidăriei etc.).
Activitățile prestate în calitate de șef de proiect includ partea de cercetare, de proiectare la toate fazele de proiectare (DALI, PTE, DTAC) și coordonare a echipei de specialiști, respectiv adaptare la legislația în domeniu și avizare.
































