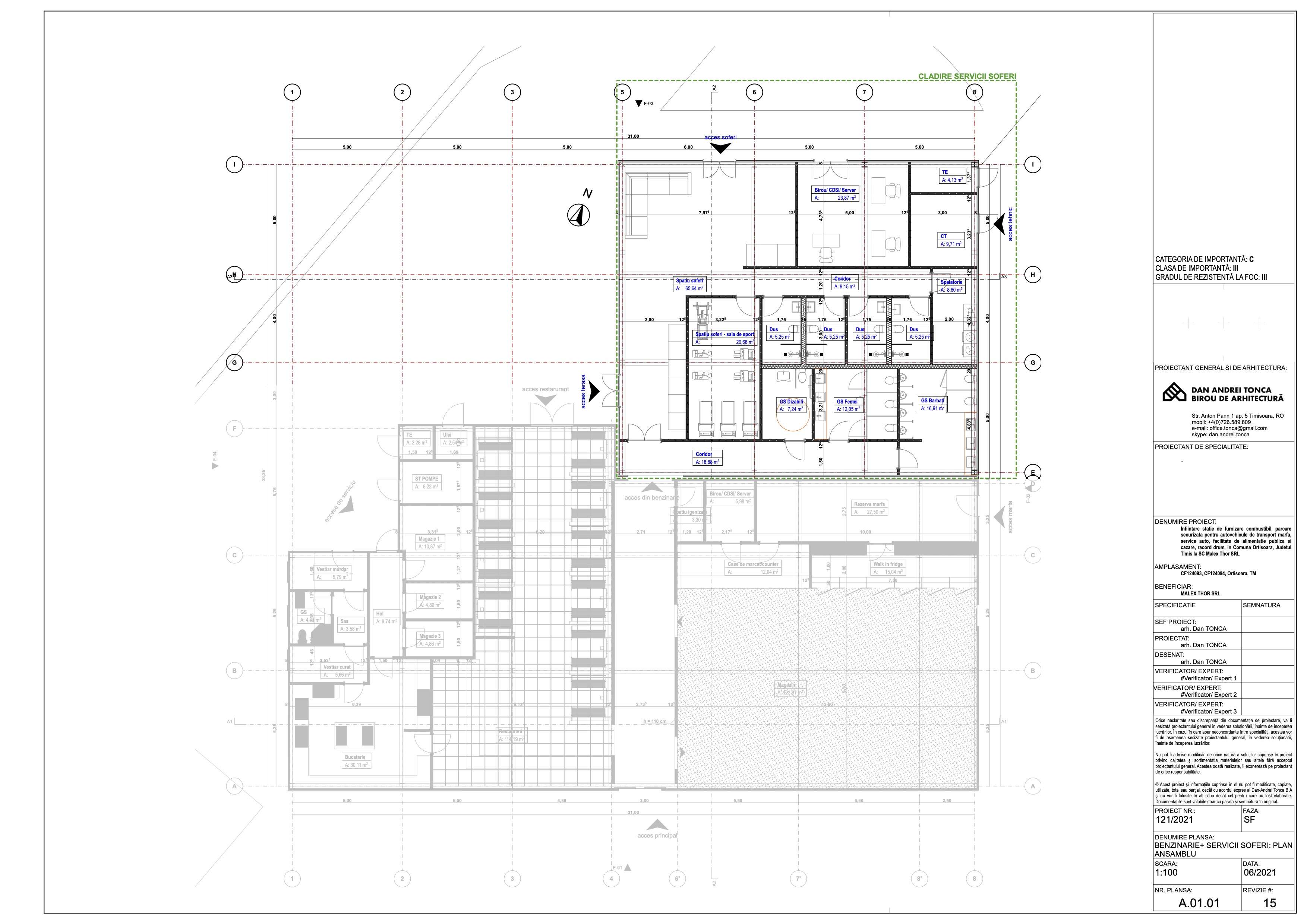
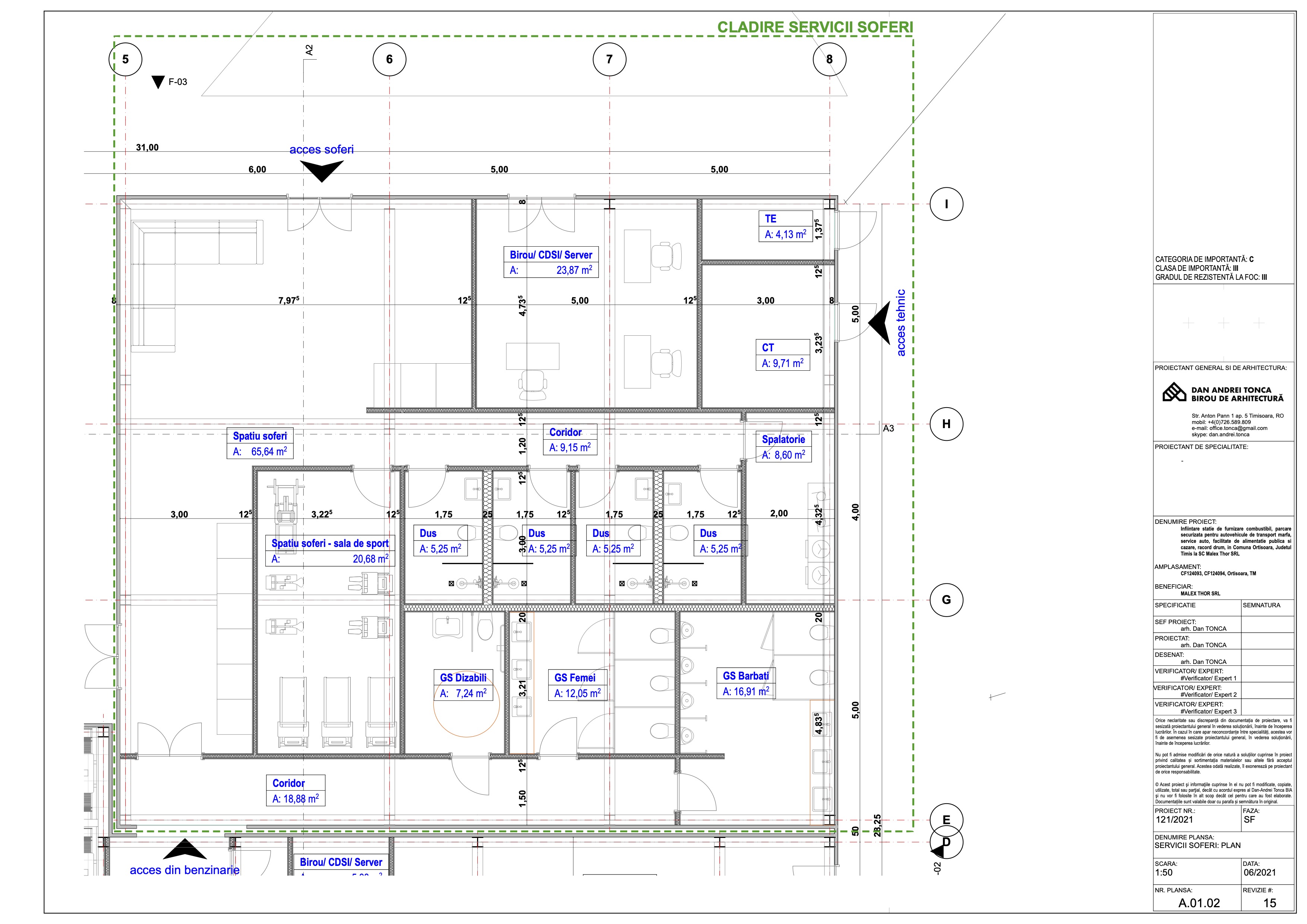
PROIECT: Secure Parking – Travel Centers of Europe
AMPLASAMENT: Com. Ortisoara, Jud. Timis
PUZ + STUDIU DE FEZABILITATE: arh. Dan-Andrei TONCA
URBANISM: urb. Ecaterina Loredana GHERASE
DRUMURI: IRICONSTRUCT SRL, ing. Irinel GRĂJDEANU
PROIECT TEHNIC: A7 ARHITECTURA
SUPRAFAȚA TEREN: 32.600 mp
SUPRAFAȚA CONSTRUITĂ: 1.603 mp
VALOAREA DE INVESTIȚIE: 8.000.000 EUR
STADIU: finalizat















