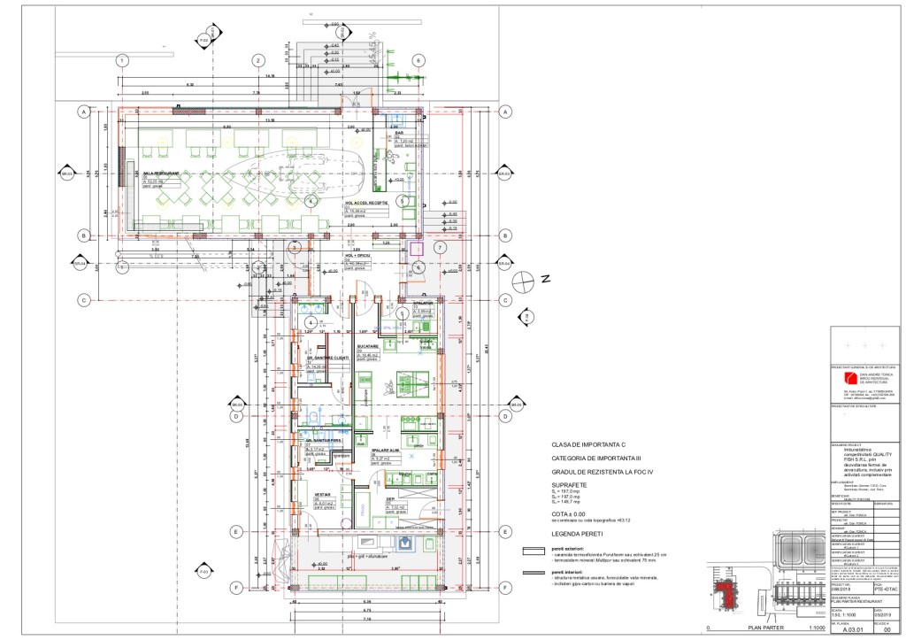
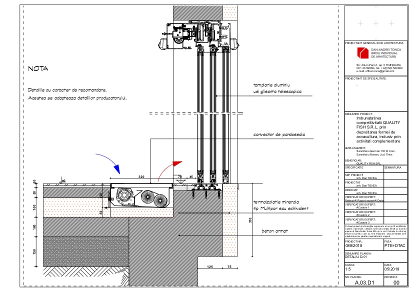
PROIECT: Imbunatatirea competitivitatii QUALITY FISH S.R.L. prin dezvoltarea fermei de acvacultura, inclusiv prin activitati complementare
AMPLASAMENT: Com. Sânmihaiu Român, Jud. Timiș
INVESTITOR: QUALITU FISH SRL
ARHITECTURA: Dan-Andrei TONCA
TEHNOLOGIE: dr. ing. Radu MUSCALU-NAGY
FAZA: SF, DTAC, PTE
ANUL: 2018
SUPRAFAȚA CONSTRUITĂ: 2.297 MP
VALOAREA DE INVESTIȚIE: 2.100.000 RON
STADIU: proiect






























