2015-2020
Proiectant general și de arhitectură: DAN ANDREI TONCA BIROU DE ARHITECTURĂ
Expert Ministerul Culturii: Prof. em. dr. arh. Teodor Octavian GHEORGHIU
Expert tehnică: Prof. dr. ing. Marin MARIN
Expertiza biologică: BIOHARCOM SRL, biolog dr. Livia BUCȘA
Expertiza pictură murală: expert restaurator Nicolaie SAVA, specialist restaurator dr. Irina SAVA
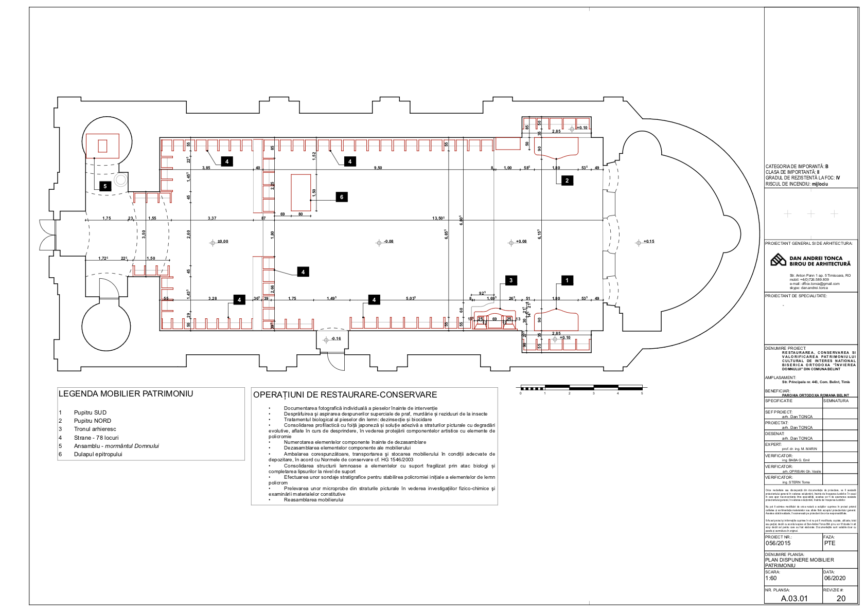
Expertiza patrimoniu mobil lemn și policromie: expert restaurator dr. Filip Adrian PETCU
Diagnostic clopote: CASTRA NIVIS SRL, pr. Dr. Dragoș Călin Eugen
Structură – consolidări: CREATIVE PIPES & CONCRETE SRL, Ing. Cristian BĂRBULESCU
Specialist Ministerul Culturii: Prof. dr. ing. Marius MOȘOARCĂ
Instalații electrice: INSTELCO SYSTEMS SRL, ing. Daniel CRISTOFOR
Una din realizările notabile este restaurarea bisericii din Comuna Belinț, Jud. Timiș, proiect la care am participat ca șef de proiect la toate fazele: scrierea proiectului în vederea finanțării prin fonduri nerambursabile, documentația DALI, obținerea avizelor, documentația PTE și șantierul propriu-zis. Proiectul a fost unul complex, derulat pe parcursul a aproape 5 ani (3 ani pentru proiectare și finanțare, respectiv 2 ani de șantier).
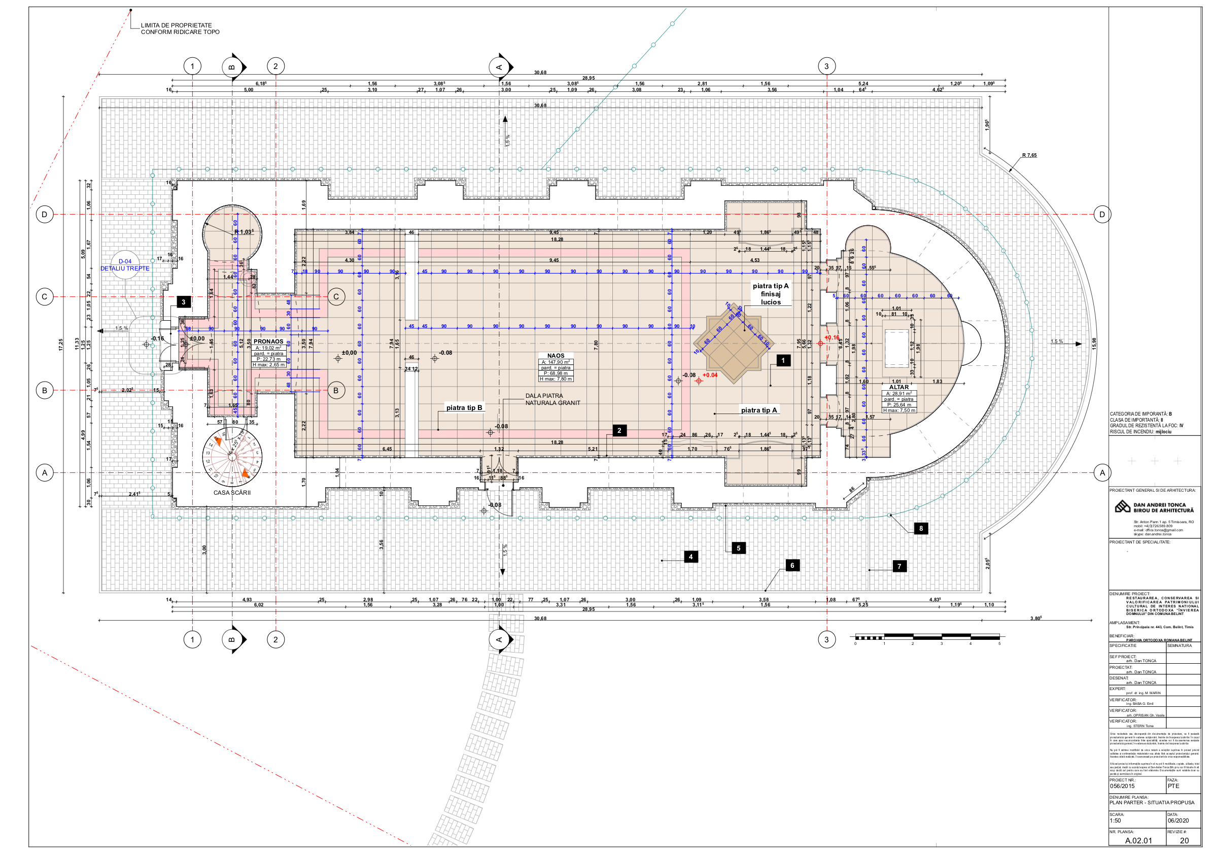
Construcție reprezentativă pentru barocul din Banat, biserica ortodoxă cu Hramul Învierii Domnului a fost terminată şi sfințită în 1797, sub preotul Alexandru Petrovici, parohul dintre 1780 şi 1807. Biserica actuală a fost ridicată în urma distrugerii bisericii anterioare, care a ars în 10.09.1788, odată cu arderea aproape integrală a satului datorită ultimei invazii otomane, în timpul războiului austro-turc. Pictura bisericii a fost executată abia la 1825.
În timpul absolutismului, localitatea a fost reședință de pretură. Belințul a aparținut până în 6.06.1779 Cercului Lugoj si apoi Comitatului Timiș. Din 1785, la biserica Belinț a început să funcționeze cel mai vechi atelier de legat cărți din Banat.
Metodele de cercetare au fost complexe – vizite la fața locului, studierea documentelor de arhivă și a bibliografiei aferente, scanarea 3D a monumentului cu nori de puncte, realizarea unui releveu detaliat, dezveliri ale fundațiilor, expertiza tehnică, expertiza biologică, studiu de parament și de umiditate a zidăriei, expertiza de pictură murală, expertiza de patrimoniu mobil lemn și policromie, inclusiv un diagnostic al clopotelor.
Parcursul proiectului a fost unul complet și complex, activitățile prestate în calitate de șef de proiect incluzând scrierea proiectului în vederea finanțării nerambursabile prin Programul Operațional Regional, proiectare la toate fazele de proiectare (DALI, PTE, DE) și coordonare a echipei de specialiști, adaptare la legislația în domeniu și avizare, asistența pe șantier pe toată perioada execuției.








































