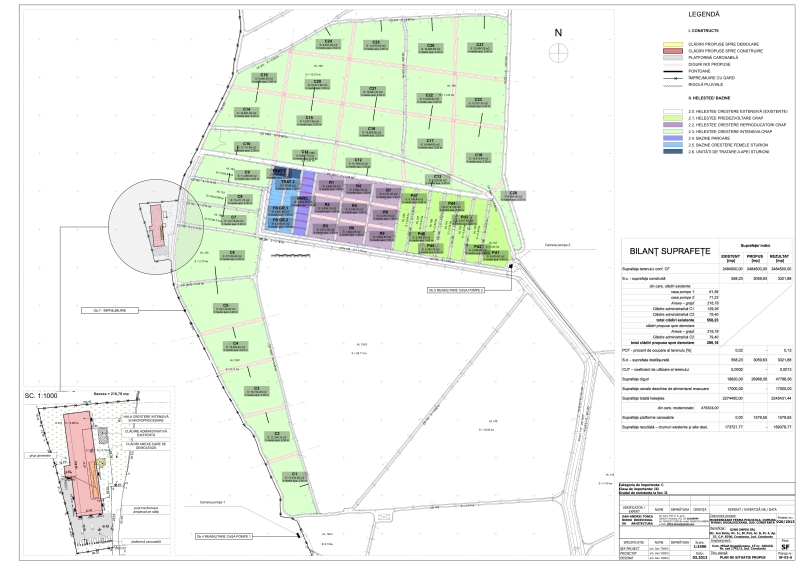
Modernizare fermă piscicolă

AMPLASAMENT: COM. KOGĂLNICEANU, JUD. CONSTANȚA

SUPRAFAȚA: 248,50 HA

ANUL: 2013

ARHITECT: ARH. DAN-ANDREI TONCA

TEHNOLOGIE: ING. RADU MUSCALU-NAGY

FOTO: DAN-ANDREI TONCA

VALOAREA DE INVESTIȚIE: 5.000.000 EUR

STADIU: implementat


DSC_1756 DSC_1786


DSC_1708GINO IMPEX_SF_17_03_mic GINO IMPEX_SF_17_06_mic GINO IMPEX_SF_17_08_mic GINO IMPEX_SF_17_09_mic GINO IMPEX_SF_17_11_mic

Lasă un comentariu