Modernizare Aula Magna UVT Timișoara

AMPLASAMENT: TIMIȘOARA

PROIECTANT GENERAL: ATELIERELE ARHITECH SRL

SUPRAFAȚA: 512 mp

ANUL: 2005

STADIU: FINALIZAT

VALOAREA DE INVESTIȚIE: NA

 

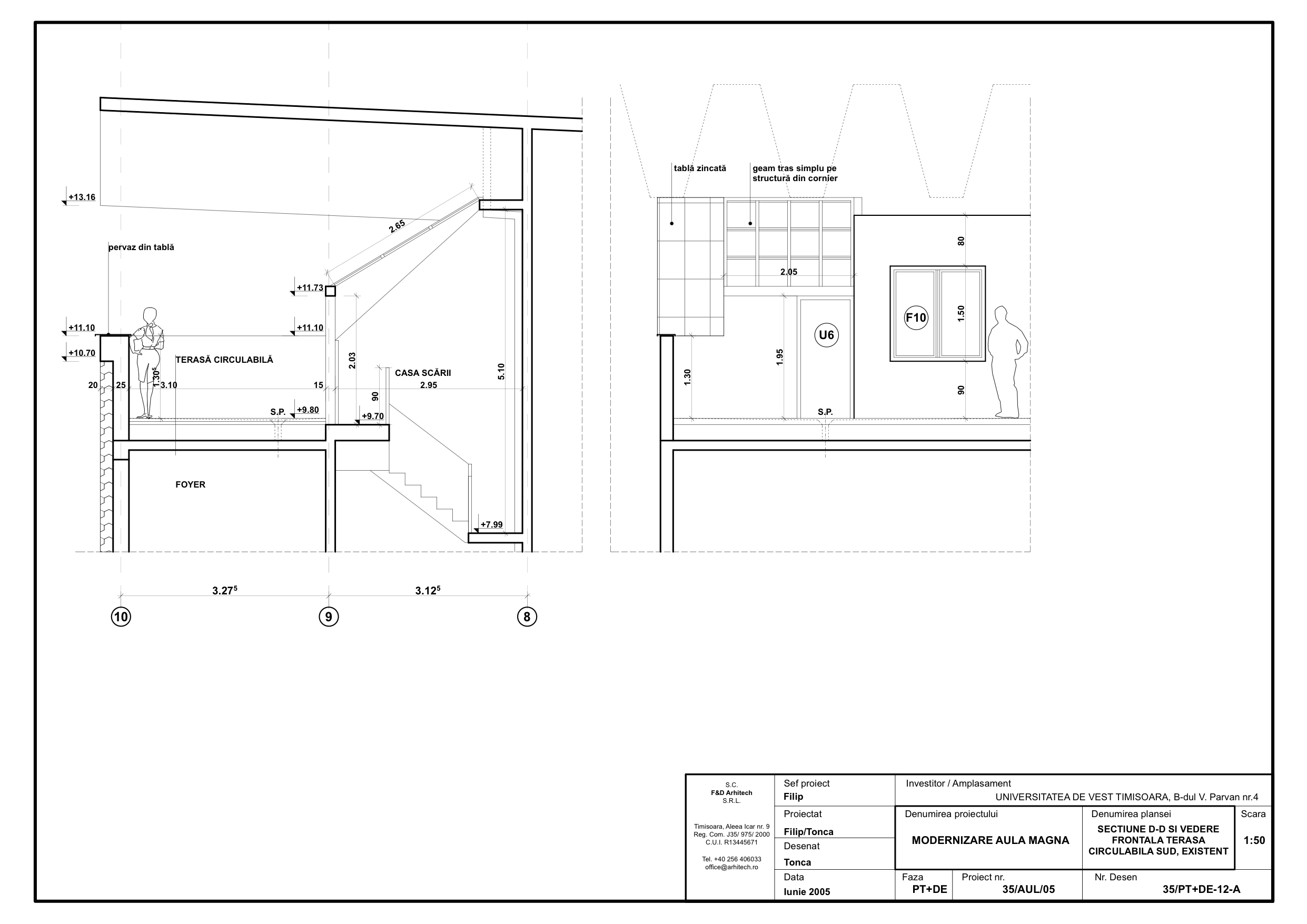
ÎNAINTE DE REAMENAJARE:

DSCN7516 DSCN7517

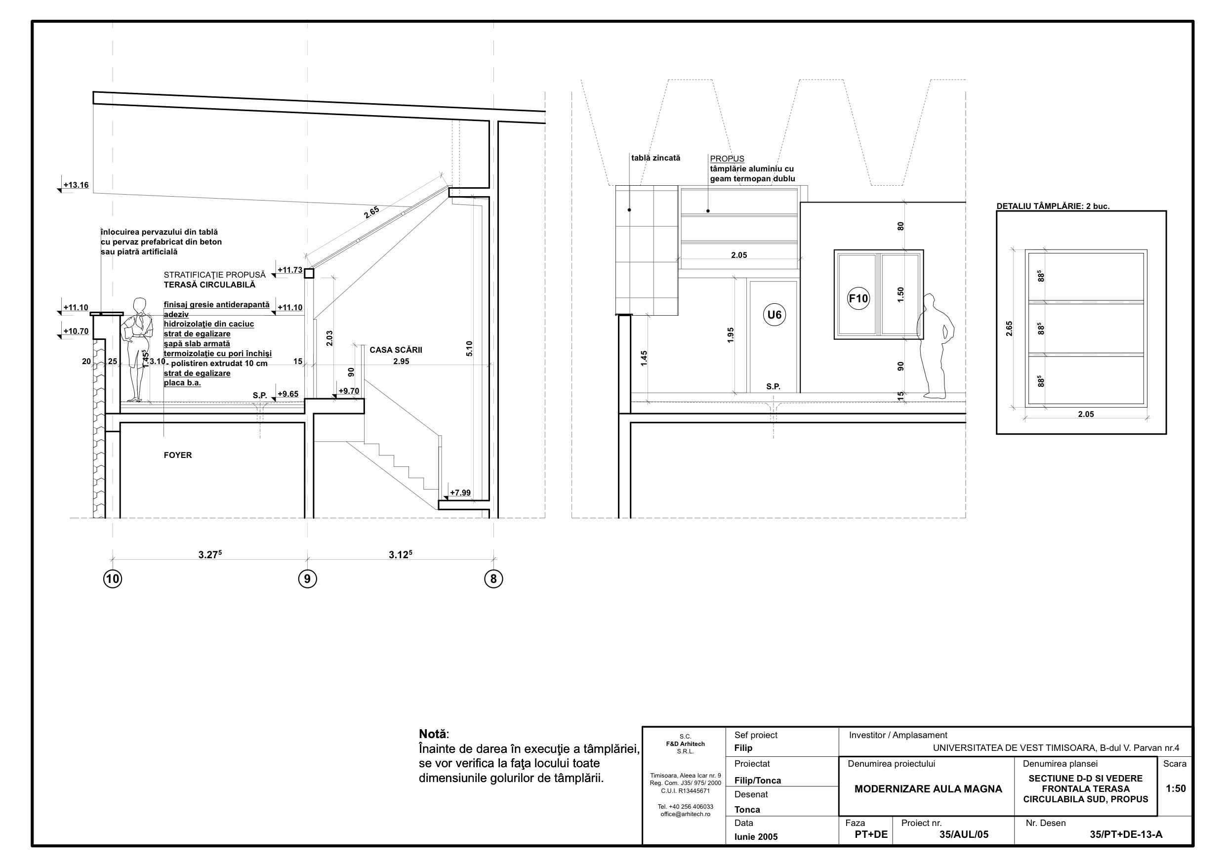
DUPĂ REAMENAJARE:

DSC_1145

ImageImageImageImage

ȘANTIER:

DSC_0188 DSC_0193 DSC_0200 DSC_0202 DSC_0203 DSC_0211












02-A
05-A 08-A 09-A 11-A

Lasă un comentariu