Proiect de licență – Centru educațional de performanță

PROIECT DE LICENȚĂ – CENTRU EDUCAȚIONAL DE PERFORMANȚĂ

COORDONATOR: DRD. ARH. EMILIAN SORIN CIURARIU

AMPLASAMENT: TIMIȘOARA

SUPRAFAȚA DESFĂȘURATĂ PROPUSĂ: 3000 mp

ANUL: 2004

concept


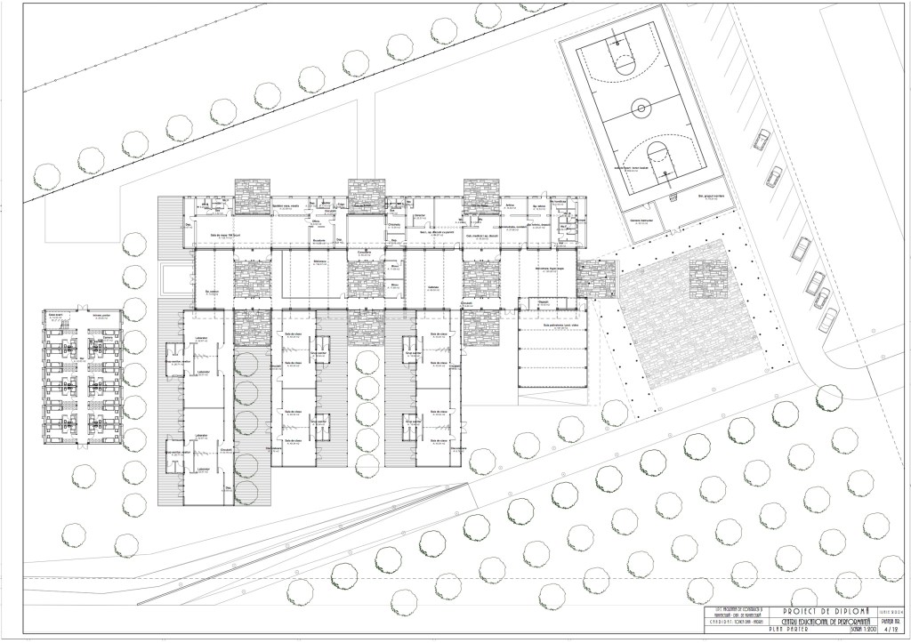
partea desenata_1 partea desenata_2 partea desenata_3 partea desenata_4

fatada est

fatada nord

fatada sudsist constr

partea desenata_6

Lasă un comentariu